Es ist Basels neuer architektonischer Pilgerort. Die Umnutzung des ehemaligen Coop-Weinlagers auf dem Lysbüchelareal steht kurz vor der Fertigstellung. Esch Sintzel Architekten haben im Auftrag der Stiftung Habitat das zuletzt von Coop als Lagerhaus genutzte Gebäude zu einer Wohnmaschine ganz entsprechend der Re-use- und Nachhaltigkeitsbewegung umgebaut. Das Projekt trifft den Nerv und die Interessen der Zeit. Es erstaunt daher nicht, dass Marco Rickenbacher vom Büro Esch Sintzel Architekten bereits vor Vollendung mit dem Arrangieren von Architekturführungen vielbeschäftigt ist. Auch wir durften uns einen ersten Eindruck verschaffen und wagen die These: Hier entsteht gerade eine neue Schweizer Wohnikone! Den Architekten gelingt mit einer geschickten Aneignung der alten Tragstruktur und dem Aufgreifen von identitätsstiftenden, industriellen Merkmalen eine vielversprechende Neuinterpretation der Wohnmaschine für diesen spezifischen Ort.

Bauen ist Weiterbauen
Es ist bereits die dritte Nutzung, welche die Bestandsstruktur erlebt. Ursprünglich erbaut wurde sie 1955 vom Allgemeinen Consumverein beider Basel (ACV) als Struktur eines neunzig Meter langen, sechsgeschossigen Lagerhauses mit Walmdach. 1973 beschliesst Coop (ehemals ACV) das Weinlager zu vergrössern und es als Verteilzentrum zu nutzen. In diesem Zuge wird das Walmdach abgebrochen und das Gebäude mit zwei neuen Stahlbau-Geschossen inklusive Flachdach aufgestockt. Im gleichen Schritt wird das Gebäude mit einer Blechfassade, wie sie bei industriellen Nutzungen üblich sind, eingepackt. 2016 gibt die Coop Genossenschaft den Standort Lysbüchel als Verteilzentrum auf und verkauft das Grundstück an die Stiftung Habitat, die daraufhin mit Metron einen Masterplan erarbeitet. Das Areal wurde in mehrere Parzellen aufgeteilt. Den grössten Teil davon hat die Stiftung im Baurecht an verschiedene Genossenschaften und Baugemeinschaften abgegeben. Das ehemalige Weinlager steht auf einer der drei Parzellen, die sie selber bebaut haben und wo ein qualitätssicherndes Wettbewerbsverfahren stattfand.

Über die geerbte Identität
Nach mehreren Um- und Anbauten war das Weinlager kein architektonisches Schmuckstück mehr, spielte für die Identität des Ortes und dessen Geschichte aber nach wie vor eine zentrale Rolle. Das Team um Esch Sintzel konnte sich im Studienauftrag gegen Luca Selva Architekten, Bachelard Wagner und pool Architekten behaupten. Man spürt das grosse Interesse des Siegerteams an Lucius Burkhardts Theorie des Weiterbauens und den Reiz und die Chance an einer «geerbten Identität» festzuhalten. Marco Rickenbacher gefällt Burkhardts Ansatz, dass «ein umgebautes Haus viel wertvoller ist als ein Neubau, weil seine Anpassungsfähigkeit bereits bewiesen wurde» besonders. Burkhardts Forderung, dass Bauen immer als Weiterbauen zu sehen und schonend und vorausschauend mit Ressourcen umzugehen hat, ist brandaktuell. Daher folgender Buchtipp: Bauen ist Weiterbauen. Lucius Burckhardts Auseinandersetzung mit Architektur. In seinem Essay fast Stefan Kurath Burkhardts Weiterbau-Theorie wie folgt zusammen: «Vielmehr geht es darum, dass Architektinnen und Architekten räumliche und gesellschaftliche Eigenarten erkennen, die lokal-spezifische Geschichte eines Ortes weitererzählen, ergänzen und dadurch in eine nachhaltige Zukunft führen.» Genau dieser Vorgang ist das Erfolgsgeheimnis der neuen Wohnmaschine: Mit vielen subtilen Anekdoten erinnern die Architekten an die Geschichte des Hauses und führen es so in eine nachhaltige Zukunft.

Das ehemalige Weinlager wurde bis auf den Rohbau zurückgebaut. Auch die beiden Stahlbaugeschosse aus den 70er-Jahren mussten weichen, weil sie zu hoch waren um der Zone 5a und einer Gebäudehöhe von 18 Meter zu entsprechen und sich die Stiftung nicht den Bestandsschutz in Anspruch nehmen wollte. Wer während dieser Bauphase einen Blick auf den freigesetzten Rohbau erhaschen konnte, fühlte sich an die schönen Strukturmodelle in der Studienzeit erinnert. Gleichzeitig stellt sich die Frage der Verhältnismässigkeit – in diesem Moment schien mir das gewählte Vorgehen sehr «romantisch». Sieht man nun aber kurz vor der Fertigstellung, was diese Struktur räumlich leistet und welche industrielle Identität sie den Wohnungen bringt, so ist die Erhaltung nicht nur für den Grauenergiewert, sondern auch für das architektonische Bauwerk ganz zentral. Mittels eines Massivbaus wird im Projekt von Esch Sintzel die Bestandsstruktur wiederum um zwei niedrige Geschosse erhöht und erhält zusätzlich zwei Attikageschosse. Letzteres ist baurechtlich möglich, weil es zu keiner Verschattung der umliegenden Häuser führt. Um die Bestandstruktur auszusteifen erhält das Weinlager seitlich «zwei massive Buchstützen» die sich auch in den Fassaden abzeichnen. Dazwischen werden auf der Nord- und Südseite Balkonschichten vorgestellt, welche durch ihre Filigranität auffallen und für den Ausdruck prägend sind.


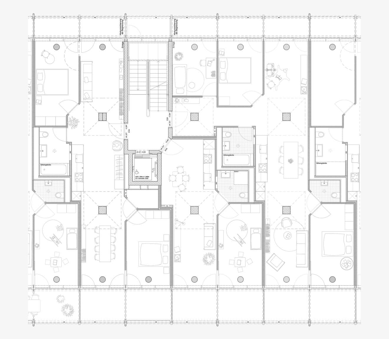
Vielseitiges Programm und lustvolle Typologie Im Haus befinden sich insgesamt 64 Mietwohnungen mit einem Raumangebot von 1.5 bis 7.5 Zimmern. Es entsteht ein neuer Wohnhaus-Massstab für Basel. Den zukünftigen Bewohnern wird à la Corbusiers Unité einiges geboten: Einen Gemeinschaftsraum, eine gemeinschaftliche Dachterrasse, die an ein Schiffsdeck erinnert, die zu geselligen Abenden über den Dächern einlädt, sowie Gästezimmer und sogenannte «chambre d’amis». Dazu kommen öffentliche Nutzungen wie Gewerberäume, eine Café-Bar und sieben Musikproberäume. Laut den Architekten ist noch wichtiger als alle gemeinschaftlichen Raumangebote die Aktivität und das Begegnen im Haus sowie eine angenehme Grosszügigkeit und Lichtstimmung in diesen Bereichen. In der Rue Interieur im Erdgeschoss erreichen sie dies beispielsweise durch Trennwände aus Glasbausteinen zu den gemeinschaftlichen Waschsalons.


Im ersten und zweiten Obergeschoss sind die Treppenhäuser, die von der Rue Interieur im Erdgeschoss erschlossen werden, jeweils als Dreispänner angelegt. Die eindrucksvollen Pilzstützen werden in den Wohnungen freigespielt und sorgen für die räumliche Ordnung. Sie zonieren auf eine charmante Weise die durchgestreckten Wohn- und Essräume in drei adäquate Bereiche und heben das Schlauchige und wenig Behagliche, das dieser Durchwohn-Typus sonst oftmals mit sich bringt, komplett auf.

Mittels der Anordnung der Zimmer und dem Abknicken der Zimmertüren um 45 Grad erhöhen die Architekten den Lichtanteil im Zentrum der Wohnung gekonnt. Die durch die Bestandsstruktur hervorgegangene, beträchtliche Raumhöhe im 1. Obergeschoss verleiht diesen Wohnungen eine beeindruckende räumliche Qualität. Es erstaunt nicht, dass nach kürzester Zeit bereits alle Wohnungen noch vor Vollendung vermietet sind. Keine Bauherrschaft hätte in einem reinen Neubau dieser Raumhöhe zugestimmt – hier wird sie glücklicherweise von der Substanz vorgegeben.


Anders als andere Wettbewerbsteilnehmer bieten Esch Sintzel die zweistöckigen Maisonette-Wohnungen nur in der neu erstellten Aufstockung an. Dies ist ein geschickter Schachzug. Dadurch werden die Aussparungen und Durchdringungen durch interne Treppen oder Lufträume in den bestehenden Betondecken minimiert und sie können ganz selbstverständlich und grosszügig, ohne statische Strapazen im neuen Gebäudeteil angeboten werden.

Farbige Fassadengestaltung
Für die Fassadenverkleidung wurden handelsübliche Trapezbleche verwendet. Einerseits, um an der Geschichte des Baus aus den 70er Jahren weiterzuschreiben, anderseits zur Erhaltung der ästhetischen Identität. Die Standardbleche werden jedoch umgekehrt angebracht. Damit ändert sich das Verhältnis. Die eigentliche Nut sieht nun aus wie eine Deckleiste, wie wir sie von klassischen Holzfassaden kennen. Stirnseitig, im Bereich der Fenster wird die Fassadenverkleidung aufgeklappt. Marco Rickenbacher beschreibt die Absicht als ähnlich dem «Öffnen einer Aluminiumdose». Die als Stahlbau konstruierten Balkonschichten sind als selbsttragende Konstruktion beidseitig vor das eigentliche Gebäude gestellt. Durch den Abstand von 1.5 cm konnte die Anschlussabdichtung eingespart werden. Die Balkonplatten, in Trapezbleche gegossenen Betonfertigteile, konnten dank dem Blech elegant gefertigt werden.

Ein Thema zuviel?
Die Geschichte erzählt sich gut. Durch das Zurückschneiden der statisch wirksamen Brüstungen der Bestandsfassade mussten die Bestandsdecken gespriesst werden. Die Architekten entwickelten eine Faszination und Freude an der Idee dies auch im Endzustand mittels massiver Fichtenstämme aus dem Jura zu bewältigen. Obwohl der Ansatz und die Nachhaltigkeitsgeschichte dahinter durchaus einleuchten, vermag der rustikale Ausdruck auch zu irritieren. Vielleicht hat es mit dieser sonst so stimmig erzählten Geschichte der geerbten Identität zu tun, dass diese hölzerne Rustikalität zumindest für mich nicht ganz zu passen scheint – und es das zusätzliche Thema aus architektonischer Sicht nicht gebraucht hätte.

Insgesamt ist ein vielschichtiges, räumlich qualitätsvolles, inspirierendes Haus entstanden. Zwei Fragen, die ich mir bei der Begehung gestellt habe, können mit einem klaren «Ja» beantwortet werden: Nämlich hätte ich gerne am Projekt gearbeitet – und würde ich auch gerne hier wohnen. Die neue Wohnmaschine verbreitert das Spektrum des Wohnungsangebots in Basel und vermag einen spannenden Beitrag zu einer nachhaltigen Wohnkultur zu leisten.
Text: Christina Leibundgut / Architektur Basel
—————————
Quellen:
Home | Esch Sintzel Architekten
Esch Sintzel GmbH, Architekten ETH BSA SIA, Zürich
Stiftung Habitat
Die Stiftung Habitat setzt sich als gemeinnützige Wohnbauträgerin in Basel für bezahlbares Wohnen in einem lebenswerten, vielfältigen Umfeld mit Begegnungs- und Arbeitsorten ein.
Ortet/Peter: Bericht Umnutzung Weinlager Lysbüchel Süd
Philippe Koch, Andreas Jud, ZHAW Institut Urban Landscape (Hrsg.), Bauen ist Weiterbauen, Lucius Burckhardts Auseinandersetzung mit Architektur, 2021.



